top of page
NYARALÓ / 45m2
Fiatal házaspár építtette magának ezt a családi házat, aminek belső elrendezésébe szerettek volna még több energiát belefektetni.
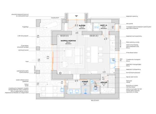
Az építész terveken alig módosítottunk, a segítség inkább a finomhangolásról szólt. Főképp a konyha és a hálószoba fürdő változott, a kis méretű főzősziget alig látta volna el a funkcióját (ehhez sokkal nagyobb méretűnek kellett volna lennie), ezért inkább egy nagy méretű étkező asztalt választottak, ami mellé egy tálaló komód is elfért.

+ 9 m
2
alapterület
MEGLÉVŐ
26 m2 kihasználatlan tér
erre évente 5876 kWh
energiát pazarolsz el
TERVEZETT
+35 m2 élettér
ennek piaci értéke
közel 35-50 millió Ft
KÜLÖN BEJÁRATOK
SZŰK KONYHA
KEVÉS SZOBA
FELESLEGES FALAK
SÖTÉT TEREK
ELŐTÉR
AMERIKAI KONYHA
EMELETI SZOBÁK
NAGYOBB ÉTKEZŐ
DUPLA MOSDÓ
HÁZTARTÁSI HELYISÉG
VENDÉG WC
KANDALLÓ
A TERVEZÉS MENETE
MEGRENDELÉS
TELEFONOS EGYEZTETÉS
FIZETÉS
FELMÉRÉS
ALAPRAJZ
1. VERZIÓ
VÉGLEGES ALAPRAJZ
KAPCSOLÓDÓ TERMÉKEK
bottom of page









